Astrid – idyllisk havehus med overdækning
Astrid er et kompakt og funktionelt havehus, der kombinerer et lukket rum med en integreret overdækket front. Med sit enkle design og overskuelige størrelse er det en oplagt løsning til dig, der ønsker et mindre havehus til både opbevaring og ophold.
Den overdækkede front giver mulighed for at skabe et hyggeligt uderum i forlængelse af huset, hvor du kan sidde i læ eller stille ting, der ikke skal stå direkte ude.
Enkel opbygning og god funktionalitet
Havehuset er opbygget som ét samlet rum med dobbeltdør i fronten, hvilket giver nem adgang og fleksibel indretning. Den integrerede overdækning forlænger anvendelsen og gør huset anvendeligt i flere situationer – både i hverdagen og i sæsonerne.
Den kompakte størrelse gør Astrid velegnet til mindre haver, hvor der stadig er behov for et funktionelt og anvendeligt havehus.
Klassisk træhus i solid konstruktion
Astrid er opført i traditionel bjælkehuskonstruktion, hvor vægelementerne samles lag for lag. Det sikrer en stabil konstruktion og en enkel montage.
Træet leveres ubehandlet og kan efterfølgende behandles i den farve, der passer til hus og have.
Specifikationer
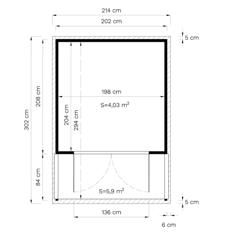
- Udvendige mål: ca. 202 × 291 cm
- Samlet areal: ca. 5,9 m²
- Tagtype: Saddeltag
- Højde: ca. 215 cm
- Dør: Dobbeltdør i front
- Overdækket front integreret i konstruktionen
- Konstruktion: Bjælkehuskonstruktion i træ
- Leveres som: Samlesæt
Der medfølger også:
✔️ Udhængs- og sternbrædder
✔️ Montagekit
✔️ Installationsvejledning
LEVERING
✔️ Gratis levering til brofaste øer og fastland.
DKK 15.499,00
Levering med kranbil
Produkter over 3 m² leveres som udgangspunkt med kranbil. Vi kan løfte varen ind fra vejen med en rækkevidde på op til 6 meter, hvis adgangsforholdene tillader det. Har du særlige ønsker til leveringen, kan du skrive dem i kommentarfeltet ved bestilling.
